Case study
Base Square Office
Project info
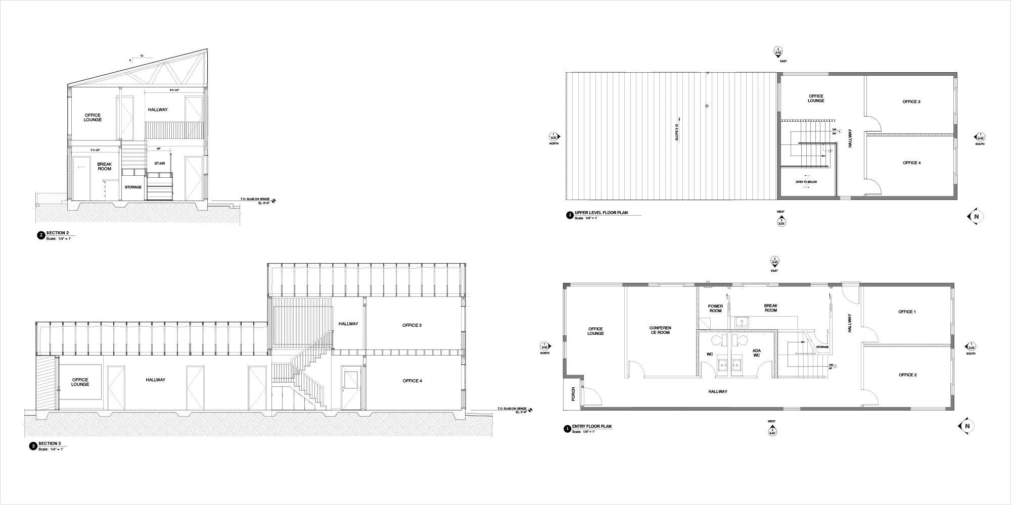
Base Square is a design-build firm, and this project focused on creating its own headquarters, the Base Square Office. The goal was to design a workspace where brand, architecture, and material come together as one story, reflecting the firm’s culture of craft, precision, and collaboration.
Scope of work
Architectural Layout
Interior Design
Construction documentation and presentation package
Branding and Brand Identity











No items found.